Construction d’une maison d’habitation – 47060 Caudecoste

Présentation du projet

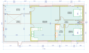
Ce projet nécessite une coordination étroite entre les différents intervenants, une gestion rigoureuse du budget et du calendrier, ainsi qu’une attention particulière aux détails techniques et esthétiques pour créer une maison fonctionnelle et esthétique.

Pourquoi faire confiance à Maison Confortoit ?

Accompagnement complet

Maison Confortoit propose un accompagnement personnalisé à chaque étape du projet, de la conception des plans jusqu’à la remise des clés, afin d’assurer un suivi clair et rassurant. Chaque maison est entièrement personnalisable, avec des plans modulables et de nombreuses options pour répondre aux besoins et au budget de chacun.

Respect des normes

Les constructions sont réalisées dans le respect des normes en vigueur, notamment la RE2020, garantissant performance énergétique, confort et durabilité.

40 décennies d’expertise

Entreprise locale depuis 1978, nous mettons tout notre savoir-faire et notre expérience à votre service. Nos équipes accompagnent chaque projet avec rigueur et professionnalisme.

No Comments

Sorry, the comment form is closed at this time.

Reset password

Entrez votre adresse e-mail et nous vous enverrons un lien pour changer votre mot de passe.

Commencez avec votre compte

pour enregistrer vos maisons préférées et plus encore

Inscrivez-vous avec l'adresse e-mail

Commencez avec votre compte

pour enregistrer vos maisons préférées et plus encore

By clicking the «S'INSCRIRE» button you agree to the Conditions d'utilisation and Politique de confidentialité
Powered by Estatik