Construction d’une maison d’habitation – 47330 Cahuzac

Présentation du projet

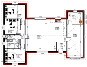
La maison est constituée de deux ailes principales reliées par une partie centrale.

L’aile gauche de la maison arbitre les trois chambres. Chaque chambre est suffisamment spacieuse pour inclure des rangements intégrés ou un coin bureau. Une salle de bains principale est également située dans cette aile.

La partie centrale de la maison comprend l’entrée principale, un hall spacieux qui relie les deux ailes. Un grand salon sera situé au centre, offrant une vue sur les deux côtés de la maison. La cuisine, ouverte sur le salon, dispose d’un accès direct au cellier, facilitant ainsi le rangement des provisions.

L’aile droite est dédiée au garage et au cellier. Le garage est suffisamment grand pour accueillir au moins une voiture et offre de l’espace pour des outils et des équipements de jardin. Le cellier, attenant au garage et à la cuisine, permet une organisation optimale des aliments et des fournitures.

L’agencement en « H » permet de maximiser la lumière naturelle dans toutes les parties de la maison grâce à de grandes fenêtres. Cette configuration offrira une distribution équilibrée des espaces de vie et des espaces fonctionnels, assurant confort et praticité au quotidien.

Pourquoi faire confiance à Maison Confortoit ?

Accompagnement complet

Maison Confortoit propose un accompagnement personnalisé à chaque étape du projet, de la conception des plans jusqu’à la remise des clés, afin d’assurer un suivi clair et rassurant. Chaque maison est entièrement personnalisable, avec des plans modulables et de nombreuses options pour répondre aux besoins et au budget de chacun.

Respect des normes

Les constructions sont réalisées dans le respect des normes en vigueur, notamment la RE2020, garantissant performance énergétique, confort et durabilité.

40 décennies d’expertise

Entreprise locale depuis 1978, nous mettons tout notre savoir-faire et notre expérience à votre service. Nos équipes accompagnent chaque projet avec rigueur et professionnalisme.

No Comments

Sorry, the comment form is closed at this time.

Reset password

Entrez votre adresse e-mail et nous vous enverrons un lien pour changer votre mot de passe.

Commencez avec votre compte

pour enregistrer vos maisons préférées et plus encore

Inscrivez-vous avec l'adresse e-mail

Commencez avec votre compte

pour enregistrer vos maisons préférées et plus encore

By clicking the «S'INSCRIRE» button you agree to the Conditions d'utilisation and Politique de confidentialité
Powered by Estatik